• Каталог проектов
      Тип
      Проекты одноэтажных домов
      Проекты двухэтажных домов
      Проекты трёхэтажных домов
      Бани
      Беседки
      Гаражи
      Особенности
      Проекты домов с террасой
      Дома с гаражом
      Дома без гаража
      Проекты домов с мансардой
      Проекты домов с подвалом
      Проекты домов с навесом для автомобиля
      Технология
      Проекты кирпичных домов
      Проекты домов из газобетона
      Проекты домов из керамоблоков
      Проекты деревянных домов
      Проекты каркасных домов
      Проекты домов из CLT-панелей
      Проекты домов из СИП
      Количество спален
      Проекты домов с одной спальней
      Проекты домов с двумя спальнями
      Проекты домов с тремя спальнями
      Проекты домов с четырьмя спальнями
      Проекты домов с пятью спальнями
      Проекты домов с шестью и более спальнями
      Стиль
      Проекты домов в классическом стиле
      Проекты домов в современном стиле
      Проекты домов в стиле хай-тек
      Проекты домов и бань в русском стиле
  • Услуги
    • Проектирование и дизайн для ИЖС
    • Дизайн-проект интерьера
    • Авторский надзор
  • Контакты
+7 (812) 9602774 0
#
#

Каталог проектов

Проекты двухэтажных домов

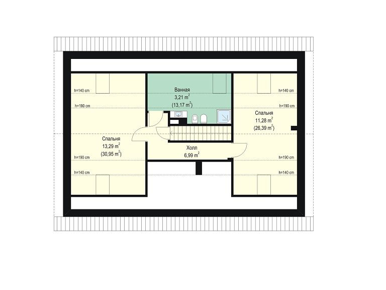
Проект двухэтажного кирпичного дома Д-953 в современном стиле

Проект двухэтажного шестикомнатного кирпичного дома Д-953 в современном стиле

Площадь 128 кв.м
Комнат 6
Cпален 5
Санузлов 3
Гараж Нет
Камин Да
← Назад Вперед →
Описание проекта

Проект двухэтажного шестикомнатного кирпичного жилого дома 9,76 м х 14,19 м в современном стиле общей площадью 128 кв.м с мансардным этажом, с террасой, с пятью спальнями, с тремя санузлами, с камином.

Архитектурный и конструктивный разделы проекта включают в себя необходимую для проведения строительных работ документацию, в том числе:
  • планировочное решение;
  • визуализации и чертежи фасадов;
  • планы фундамента, перекрытий и крыши;
  • поэтажные монтажные планы стен;
  • площади поверхностей стен;
  • ведомости оконных и дверных проёмов;
  • схемы монтажа перекрытий, стен, стропильной системы;
  • спецификации деталей конструкций;
  • трёхмерные модели конструкций стен, перекрытий и стропильной системы;
  • ведомость пиломатериалов с учётом раскроя;
  • интерактивную трёхмерную модель проекта в формате BIMx.
  • Проекты двухэтажных домов С мансардой С террасой Современный 5 спален 3 санузла 6+ комнат
    Планы
    Фасады

    Цена проекта

    40 000 ₽

    Выбрать опции для проекта Добавить в избранное Удалить из избранного

    Характеристики проекта

    Площадь:
    128 кв.м
    Длина :
    9,76 м
    Ширина:
    14,19 м
    Материал стен:
    СИП, CLT-панели, кирпич
    Количество этажей:
    2
    Подвал / мансарда:
    мансарда
    Гараж:
    Нет
    Терраса:
    Да
    Количество жилых комнат:
    6
    Количество спален:
    5
    Количество санузлов:
    3
    Камин:
    Да
    Дом с сауной:
    Нет
    Назначение:
    Дом
    Стиль:
    Современный
    Выбор опций проекта

    Состав проекта

    Изменение планировочного решения

    Тип фундамента

    Материал стен

    Тип перекрытия

    Отделка фасада

    Отделка стен внутри (основной материал)

    Материал кровли

    Отделка цоколя

    Площадь проекта:

    кв.м

    Цена опций:

    0 ₽

    Цена проекта:

    0 ₽

    Цена проекта с учётом выбранных опций:

    0 ₽

    Получить консультацию

    Популярные проекты

    Подробнее

    Современный
    Д-2532
    ПРОЕКТ ОДНОЭТАЖНОГО КАРКАСНОГО ДОМА Д-2532 В СОВРЕМЕННОМ СТИЛЕ

    Проект одноэтажного каркасного дома Д-2532 в современном стиле.

    • Площадь: 155 кв.м
    • Этажей: 1
    • Комнат: 5
    • Cпален: 4
    • Санузлов: 2
    • Камин: Нет

    51 000 ₽

    Подробнее

    Барн-хаус
    Д-2517
    ПРОЕКТ ДВУХЭТАЖНОГО КАРКАСНОГО ДОМА Д-2517 В СОВРЕМЕННОМ СТИЛЕ

    Проект двухэтажного каркасного дома Д-2517 в стиле Барн-Хаус.

    • Площадь: 152 кв.м
    • Этажей: 2
    • Комнат: 4
    • Cпален: 3
    • Санузлов: 2
    • Камин: Нет

    50 400 ₽

    Подробнее

    Современный
    Д-2514
    ПРОЕКТ ДВУХЭТАЖНОГО КАРКАСНОГО ДОМА Д-2514 В СОВРЕМЕННОМ СТИЛЕ

    Проект двухэтажного каркасного дома Д-2514 в современном стиле.

    • Площадь: 470 кв.м
    • Этажей: 2
    • Комнат: 6
    • Cпален: 3
    • Санузлов: 3
    • Камин: Нет

    79 800 ₽

    Подробнее

    Современный
    Д-2515
    ПРОЕКТ ДВУХЭТАЖНОГО КАРКАСНОГО ДОМА Д-2515 В СОВРЕМЕННОМ СТИЛЕ

    Проект двухэтажного каркасного дома Д-2515 в современном стиле.

    • Площадь: 357 кв.м
    • Этажей: 2
    • Комнат: 6
    • Cпален: 4
    • Санузлов: 3
    • Камин: Нет

    73 120 ₽

    Подробнее

    Современный
    Д-2516
    ПРОЕКТ ДВУХЭТАЖНОГО КАРКАСНОГО ДОМА Д-2516 В СОВРЕМЕННОМ СТИЛЕ

    Проект двухэтажного каркасного дома Д-2516 в современном стиле.

    • Площадь: 220 кв.м
    • Этажей: 2
    • Комнат: 5
    • Cпален: 3
    • Санузлов: 2
    • Камин: Нет

    57 600 ₽

    Подробнее

    Современный
    Д-2526
    ПРОЕКТ ДВУХЭТАЖНОГО КАРКАСНОГО ДОМА Д-2526 В СОВРЕМЕННОМ СТИЛЕ

    Проект двухэтажного каркасного дома Д-2526 в современном стиле.

    • Площадь: 170 кв.м
    • Этажей: 2
    • Комнат: 6
    • Cпален: 4
    • Санузлов: 2
    • Камин: Нет

    54 000 ₽

    Подробнее

    Современный
    Д-2529
    ПРОЕКТ ДВУХЭТАЖНОГО КАРКАСНОГО ДОМА Д-2529 В СОВРЕМЕННОМ СТИЛЕ

    Проект двухэтажного каркасного дома Д-2529 в современном стиле.

    • Площадь: 180 кв.м
    • Этажей: 2
    • Комнат: 6
    • Cпален: 3
    • Санузлов: 3
    • Камин: Нет

    56 000 ₽

    Подробнее

    Современный
    Д-2528
    ПРОЕКТ ДВУХЭТАЖНОГО КАРКАСНОГО ДОМА Д-2528 В СОВРЕМЕННОМ СТИЛЕ

    Проект двухэтажного каркасного дома Д-2528 в современном стиле.

    • Площадь: 135 кв.м
    • Этажей: 2
    • Комнат: 5
    • Cпален: 3
    • Санузлов: 2
    • Камин: Нет

    47 000 ₽

    Подробнее

    Современный
    Д-2531
    ПРОЕКТ ОДНОЭТАЖНОГО КАРКАСНОГО ДОМА Д-2531 В СОВРЕМЕННОМ СТИЛЕ

    Проект одноэтажного каркасного дома Д-2531 в современном стиле.

    • Площадь: 140 кв.м
    • Этажей: 1
    • Комнат: 4
    • Cпален: 3
    • Санузлов: 2
    • Камин: Нет

    48 000 ₽

    Подробнее

    Современный
    Д-2530
    ПРОЕКТ ОДНОЭТАЖНОГО КАРКАСНОГО ДОМА Д-2530 В СОВРЕМЕННОМ СТИЛЕ

    Проект одноэтажного каркасного дома Д-2530 в современном стиле.

    • Площадь: 115 кв.м
    • Этажей: 1
    • Комнат: 3
    • Cпален: 2
    • Санузлов: 1
    • Камин: Нет

    43 000 ₽

    Подробнее

    Современный
    Д-2525
    ПРОЕКТ ДВУХЭТАЖНОГО КАРКАСНОГО ДОМА Д-2525 В СОВРЕМЕННОМ СТИЛЕ

    Проект двухэтажного каркасного дома Д-2525 в современном стиле.

    • Площадь: 150 кв.м
    • Этажей: 2
    • Комнат: 6
    • Cпален: 4
    • Санузлов: 2
    • Камин: Нет

    50 000 ₽

    Подробнее

    Современный
    Д-2538
    ПРОЕКТ ОДНОЭТАЖНОГО КАРКАСНОГО ДОМА Д-2538 В СОВРЕМЕННОМ СТИЛЕ

    Проект одноэтажного каркасного дома Д-2538 в современном стиле.

    • Площадь: 36 кв.м
    • Этажей: 1
    • Комнат: 2
    • Cпален: 2
    • Санузлов: 1
    • Камин: Нет

    40 000 ₽

    Подробнее

    Современный
    Д-2537
    ПРОЕКТ ОДНОЭТАЖНОГО КАРКАСНОГО ДОМА Д-2537 В СОВРЕМЕННОМ СТИЛЕ

    Проект одноэтажного каркасного дома Д-2537 в современном стиле.

    • Площадь: 24 кв.м
    • Этажей: 1
    • Комнат: 1
    • Cпален: 1
    • Камин: Нет

    40 000 ₽

    Подробнее

    Современный
    Д-2534
    ПРОЕКТ ДВУХЭТАЖНОГО КАРКАСНОГО ДОМА Д-2534 В СОВРЕМЕННОМ СТИЛЕ

    Проект одноэтажного каркасного дома Д-2534 в современном стиле.

    • Площадь: 36 кв.м
    • Этажей: 1
    • Комнат: 1
    • Cпален: 1
    • Санузлов: 1
    • Камин: Нет

    40 000 ₽

    Подробнее

    Современный
    Д-2536
    ПРОЕКТ ОДНОЭТАЖНОГО КАРКАСНОГО ДОМА Д-2536 В СОВРЕМЕННОМ СТИЛЕ

    Проект одноэтажного каркасного дома Д-2536 в современном стиле.

    • Площадь: 36 кв.м
    • Этажей: 1
    • Комнат: 1
    • Cпален: 1
    • Санузлов: 1
    • Камин: Нет

    40 000 ₽

    Подробнее

    Современный
    Д-2545
    ПРОЕКТ ОДНОЭТАЖНОГО КАРКАСНОГО ДОМА Д-2545 В СОВРЕМЕННОМ СТИЛЕ

    Проект одноэтажного каркасного дома Д-2545 в современном стиле.

    • Площадь: 90 кв.м
    • Этажей: 1
    • Комнат: 3
    • Cпален: 2
    • Санузлов: 1
    • Камин: Нет

    40 000 ₽

    Подробнее

    Современный
    Д-2544
    ПРОЕКТ ОДНОЭТАЖНОГО КАРКАСНОГО ДОМА Д-2544 В СОВРЕМЕННОМ СТИЛЕ

    Проект одноэтажного каркасного дома Д-2544 в современном стиле.

    • Площадь: 60 кв.м
    • Этажей: 1
    • Комнат: 3
    • Cпален: 2
    • Санузлов: 1
    • Камин: Нет

    40 000 ₽

    Подробнее

    Классика
    Д-521
    ПРОЕКТ ОДНОЭТАЖНОГО КИРПИЧНОГО ДОМА Д-521 В КЛАССИЧЕСКОМ СТИЛЕ

    Проект одноэтажного кирпичного дома Д-521 в классическом стиле.

    • Площадь: 315 кв.м
    • Этажей: 1
    • Комнат: 5
    • Cпален: 4
    • Санузлов: 3
    • Камин: Да

    66 400 ₽

    Подробнее

    Современный
    Д-2542
    ПРОЕКТ ОДНОЭТАЖНОГО КАРКАСНОГО ДОМА Д-2542 В СОВРЕМЕННОМ СТИЛЕ

    Проект одноэтажного каркасного дома Д-2542 в современном стиле.

    • Площадь: 40 кв.м
    • Этажей: 1
    • Комнат: 2
    • Cпален: 1
    • Санузлов: 1
    • Камин: Нет

    40 000 ₽

    Подробнее

    Современный
    Д-2541
    ПРОЕКТ ОДНОЭТАЖНОГО КАРКАСНОГО ДОМА Д-2541 В СОВРЕМЕННОМ СТИЛЕ

    Проект одноэтажного каркасного дома Д-2541 в современном стиле.

    • Площадь: 82 кв.м
    • Этажей: 1
    • Комнат: 3
    • Cпален: 2
    • Санузлов: 1
    • Камин: Нет

    40 000 ₽

    Поиск на сайте
    netcom

    Услуги

    • Проектирование и дизайн для ИЖС
    • Дизайн-проект интерьера
    • Авторский надзор

    Каталог проектов

    • Проекты одноэтажных домов
    • Проекты двухэтажных домов
    • Проекты трёхэтажных домов
    • Бани
    • Беседки
    • Гаражи
    • Проекты кирпичных домов
    • Проекты домов из газобетона
    • Проекты домов из керамоблоков
    • Проекты домов из CLT-панелей
    • Проекты каркасных домов
    • Проекты деревянных домов
    • Проекты домов с террасой
    • Проекты домов из СИП
    • Проекты домов с гаражом для трёх и более автомобилей
    • Проекты домов с гаражом для трёх и более автомобилей
    • Дома без гаража
    • Проекты домов с гаражом для одного автомобиля
    • Проекты домов с навесом для автомобиля
    • Проекты домов с подвалом
    • Проекты домов с мансардой
    • Проекты домов с гаражом для двух автомобилей
    • Проекты домов в стиле хай-тек
    • Проекты домов в современном стиле
    • Проекты домов в классическом стиле
    • Проекты домов с сауной
    • Проекты домов и бань в русском стиле
    • Проекты домов с одной спальней
    • Проекты домов с двумя спальнями
    • Проекты домов с тремя спальнями

    2024-2026 © Архитектурная мастерская "АрхиМаги"

    Заказ проекта № Д-953

    Выбор опций заказа

    Вид проекта:
    Проектная документация
    40 000
    ₽
    1
    5000 ₽
    5000 ₽
    0 ₽

    Информация о заказчике